1389 Bayport Ave, Marco Island, FL 34145
Toggle Navigation
Images
Videos
Floor Plans
3D Tour
Map
1389 Bayport Ave
Marco Island, FL 34145
Scroll to Content
Images
Slideshow
Photo Grid
Hide
Previous
Next
Show more
Videos
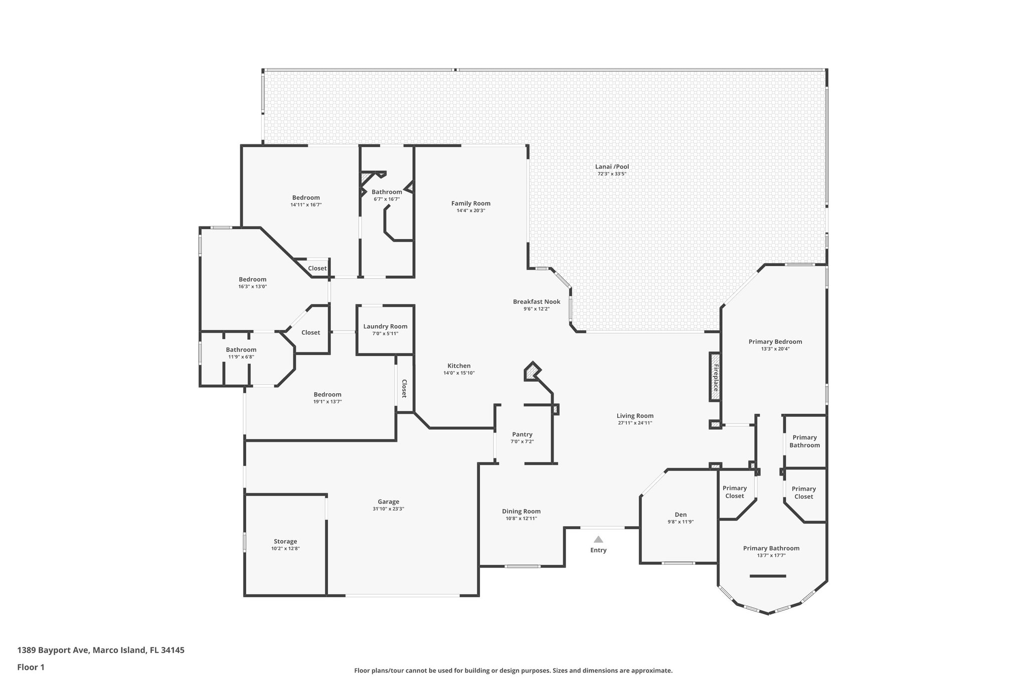
Floor Plans
Slideshow
Photo Grid
Hide
Previous
Next
3D Tour